loader image

Se Vende Propiedad En Residencial El Barrial

  • $849,028

Descripción general

  • Propiedad
  • Propiedad
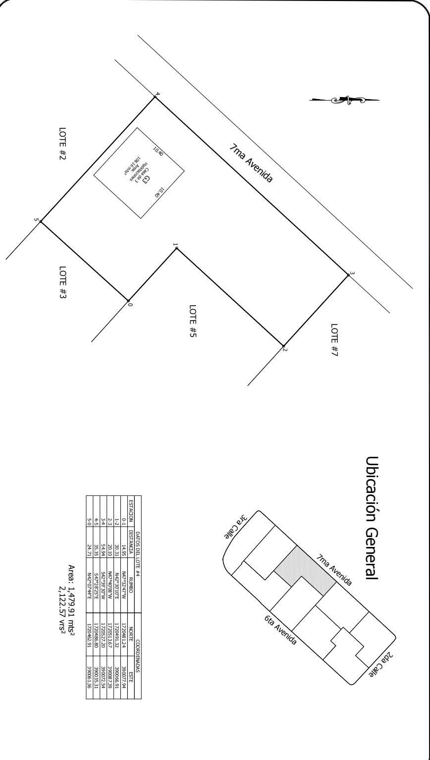
  • 2,122.57

Descripción

Se Vende Propiedad En Residencial El Barrial
2,122.57 Vrs²    |    $400/Vr²     |     $849,028

  • Vivienda de 3 habitaciones
  • 54.94 Frente
  • 35.35 Fondo lado derecho
  • 20.10 Fondo lado izquierdo
  • Circuito cerrado
  • Seguridad 24/7

 AMENIDADES

  • Áreas verdes
  • Área social y bbq
  • Área de juegos para niños
  • Cancha futbol
  • Cancha basquet
  • Cancha tenis
  • Mini Super
  • Dry-clean

Información del contacto

Ver listados
Zeyla Sanchez

Consultar sobre esta propiedad

Compare listings

Compare
Zeyla Sanchez
  • Zeyla Sanchez